聯系我們
公司名稱:江西韶華陶瓷有限公司
電話:18179279888
電子郵件:sale@jxshtc.com
地址:江西省九江市廬山市工業園區
5.1施工工藝流程
本工法的施工工藝流程見圖5.1。

圖5.1干掛陶土板幕墻施工工藝流程圖
5.2操作要點
5.2.1施工準備
1、排版分格
(1)用經緯儀和水準儀在外墻面上把控制點、線彈出來,由控制點、線處開始測量出建筑物門窗洞口、線條、墻體、挑檐等的實際位置和尺寸;
(2)根據測量數據用CAD軟件繪制出建筑物實際外立面圖,結合設計院的設計方案優化排版分格圖,做到美觀、安全、省材、并有利于施工和生產;
(3)排版分格時,應優先考慮以層高來控制板材的高度,以門窗洞口和轉角來控制板材的寬度;
(4)在圖紙中每一塊不同尺寸的板上都標記字母代號,尺寸相同的板材采用同一個字母代號。
(5)根據排版分格圖,統計同一規格的板塊數量,把排版分格圖中字母代號、規格尺寸、板材的塊數、面積,用表格的形勢表示出來,形成下料單。
2、編制材料進場計劃、勞動力需用計劃、施工進度計劃,報監理審批。
3、組織技術人員熟悉圖紙、施工方案,發現問題及時提出,進行解決,與各工種間辦理好工序交接手續。
4、根據現場條件,修建并確定現場臨時生產、生活設施,確定現場供水、供電及運輸方式,確保材料及設備進場后的堆放及保管。
5、組織工人進場,進行三級安全教育、技術交底、安全交底、熟悉現場施工環境。
6、根據施工條件,搭設或加固施工所需的腳手架,安裝垂直運輸設施,制作施工所需的分縫膠條等。
5.2.2基層檢查處理
1、基層檢查:墻體的水泥砂漿找平層應符合《建筑裝飾裝修工程質量驗收規范》GB50210-2001中一般抹灰工程的驗收標準,外墻保溫砂漿基層還應符合《建筑節能工程施工質量驗收規范》GB50411-2007中墻體節能工程的驗收標準。
2、基層處理
(1)基層平整度檢查及處理:墻體基層平整度、門窗洞口的方正度如果達不到一般抹灰的要求,應采用1:2水泥砂漿或聚合物水泥砂漿重新進行找平處理,找平層厚度宜大于等于10mm;
(2)基層缺陷檢查及處理:若基層有空鼓、裂縫和起殼現象,用砂輪切割機切開,打鑿干凈,清理到原基層后,用水濕潤后,用1:2水泥砂漿分層找平。
5.2.3測量放線
幕墻的施工測量應與主體工程施工測量軸線相配合,在墻面上放出水平控制線與垂直控制線,再根據陶土板幕墻施工圖及排版分格圖放出豎向龍骨的垂直定位線和每排后置埋件的水平安裝控制線。
根據放線后的現場情況,對實際施工的土建結構進行測量復核,如發現排版分格圖與現場實際情況誤差大,應進行調整處理,然后進行下一道工序。
5.2.4后置埋件安裝
1、后置埋件定位
用硬紙板制作一塊與后置埋件形狀、規格一致的紙埋件,在紙埋件上畫出豎直方向的中心線,將紙埋件靠在墻上中心線與豎向龍骨垂直定位線對齊,紙板上邊線與每排后置埋件的水平安裝控制線對齊,用記號筆分別在四個安裝孔做記號。
2、化學螺栓安裝
在定出的位置用沖擊鉆打孔,孔徑、孔深根據設計圖紙要求確定;用專用氣筒或壓縮空氣機清理鉆孔中的灰塵,建議重復進行不少于3次,孔內不應有灰塵與明水;將玻璃管錨固劑圓頭朝內放入孔內并推至孔底,使用電鉆及專用安裝夾具,將螺桿強力旋轉插入孔內,不應采用沖擊方式;當旋至孔底或螺栓上標志位置時,立刻停止旋轉,取下安裝夾具,凝膠后至完全固化前避免擾動。
3、拉拔試驗
化學螺栓的植入深度與螺栓的緊固程度直接影響整個幕墻的安全,因此必須通過錨栓拉拔實驗來驗證是否達到設計強度要求,取檢驗批總數的0.1%且不少于5根,抽檢合格后,才能進行埋件安裝。
4、后置埋件安裝
將后置埋件套在四根錨栓上,初步擰緊螺母,調整錨板的表面平整度和垂直度,然后擰緊螺母。安裝完成后必須用扭矩扳手檢驗螺栓、螺母的擰緊力度,不小于60N·m,抽檢率不少于1/3,并點焊固定,保證安全可靠。
5.2.5角碼及防雷安裝
1、角碼安裝
根據垂直控制線彈出角碼安裝位置線。角碼焊接時,角碼的位置應與墨線對準,并將同水平位置兩側的角碼臨時點焊,并進行檢查,再將同一根立柱的中間角碼點焊,檢查調整同一根立柱角碼的垂直度,符合要求后,進行角碼與埋件的滿焊。
2、防雷安裝
根據設計圖紙要求或采用φ12防雷連接鋼筋與后置埋件焊接,并連接至主體結構防雷系統,防雷連接鋼筋水平設置間距不大于10m。
3、安裝完成的后置埋件與角碼轉接件,經檢查驗收合格后,對焊接位置進行防腐、防銹處理。
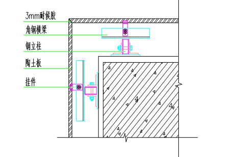
5.2.6立柱安裝
1、立柱采用鍍鋅方通,立柱下料完成后,根據角碼轉接件對螺栓孔進行定位,定位偏差小于2mm,然后使用臺鉆鉆螺栓安裝孔。
2、先安裝墻面兩端的立柱,立柱就位后通過不銹鋼螺栓將立柱與角碼轉接件連接,根據垂直線及墻面端線,對立柱位置進行調整固定,確保立柱距墻面距離和垂直度。
3、立柱從下而上逐層安裝就位,對接處用5mm厚鍍鋅鋼板L≥300mm做伸縮節,鋼板上端用螺栓與上立柱固定,下端插入已安裝的下立柱內,上下立柱接頭留20mm伸縮縫隙。
4、兩端立柱安裝完成后,中間拉兩根細鋼絲,用于調整中間部分立柱安裝的整體平整度。
5.2.7橫梁安裝
1、立柱安裝完成后,根據水平安裝控制線,按照陶土板的設計寬度及橫縫寬度依次在立柱上彈出每排橫梁的安裝定位線,每排定位線沿建筑四周必須閉合,進行復核無誤后方能焊接橫梁。
2、橫梁一般采用鍍鋅角鋼短橫梁,長度根據設計要求確定(一般不小于250mm),角鋼下料完成后使用臺鉆鉆掛件螺栓安裝孔。
3、將橫梁對準安裝定位線,點焊臨時固定,復核橫梁位置是否準確,用水平尺檢查調整平整度,檢查合格后進行滿焊固定。橫梁的安裝質量將直接影響陶土板安裝的橫縫直線度,是施工的重點工序,必須加強安裝質量控制。
4、將焊縫處焊渣清理干凈,再將焊縫與防腐層破壞部分涂刷防銹漆與保護面漆。
5、橫梁全部安裝完成后須會同監理、建設單位進行龍骨隱蔽驗收,驗收合格后進行掛件、陶土板安裝。
5.2.8掛件安裝
1、掛件采用螺栓與橫梁固定,掛件一端為可調節安裝孔,另一端分別有向上和向下的槽口,上槽口比下槽口淺一半。
2、用螺栓穿過掛件安裝孔和絕緣墊片固定到橫梁上,螺栓先不擰緊,待陶土板檢查調整平整度后再擰緊。
3、根據設計圖紙要求的陶土板安裝離墻間距和墻面端線,先擰緊最底排左右兩側的掛件,然后兩掛件之間拉平整度控制線,再根據控制線依次擰緊最底排其它掛件的螺栓。
5.2.9陶土板安裝
1、拉設縫格直線度和表面平整度控制線。
(1)拉設一級安裝控制線:在待安裝的墻體立面四個角分別用鋼筋與橫梁焊接,每兩根鋼筋之間拉設細鋼絲,根據墻面垂直線、水平線和陶土板離墻間距,調整細鋼絲的垂直度、水平度和離墻間距。
(2)拉設豎縫直線度控制線:由一級安裝控制線的垂線結合排版分格圖引出第一列陶土板豎縫直線度控制線,豎縫直線度控制線每隔4~6列設置一道。
(3)拉設橫縫直線度控制線:由一級安裝控制線的水平線引出第一排陶土板橫縫控制線和平整度控制線,橫縫控制線和平整度控制線隨著每排陶土板的安裝往上移動。
2、陶土板安裝
(1)為方便操作,陶土板從下往上逐排安裝,每排先安裝轉角處陶土板,再安裝中間陶土板。
(2)先在已緊固好的第一排轉角處掛件的上槽口用打膠槍擠入耐候膠,耐候膠厚度以槽深的一半為宜,施工過程中注意防止耐候膠污染面板;
(3)每塊陶土板至少需要四個掛件,將第一塊陶土板承載壁插入掛件槽口,扣上上排掛件,粗略調整陶土板的位置后,初步擰緊螺栓;
(4)根據平整度控制線沿垂直墻面方向調整上排兩個掛件,面板平整度符合要求后擰緊上排掛件螺栓;根據豎縫直線度控制線左右移動面板使板邊緣與控制線對齊;
(5)將與豎縫同寬的分縫膠條緊貼陶土板內側邊緣用自攻螺絲固定在橫梁上,分縫膠條伸入板縫內不少于板厚的1/3,分縫膠條要拉直連續設置,以保證防水效果;
(6)根據上述步驟依次安裝其余陶土板,左右移動調整正在安裝的板塊豎縫,以剛能卡住分縫橡膠條為準,避免用力過猛使鄰近板塊發生位移;通過中間設置的豎縫直線度控制線進行糾偏減少誤差積累,安裝過程中要經常用2m靠尺檢查板面安裝的平整度。
5.2.10細部構造處理
1、陰、陽角構造
陶土板幕墻陰、陽角處除使用成品異型陶土板外,還可以采用現場拼接的方法。
(1)陽角:分別將兩塊相接的陶土板邊緣背面用切割機割成45°倒角,先安裝固定一側的陶土板,并在接縫處均勻的涂抹耐候密封膠,然后安裝另一側的陶土板,對陶土板位置進行調整,接縫處應留出3mm的縫隙,接縫要均勻陽角要方正。

圖 陽角構造大樣圖
(2)陰角:拼接時一側的陶土板邊緣均勻的涂抹耐候密封膠后,直接蓋過另一側已安裝好的陶土板面,兩塊板不能直接接觸,應根據鄰近板縫的寬度留縫,接縫要均勻陰角要方正。
2、局部中間板塊找補安裝
先在待安裝的陶土板上下兩邊的中間空腔內各穿入一條棉繩,棉繩兩頭在板面系緊,分別提住上下兩跟棉繩,將陶土板傾斜插入上排掛件的槽口,然后將陶土板放平整,慢慢松手使陶土板卡入下排掛件槽口,左右移動板塊調整豎縫,安裝完成后解開棉繩,輕輕拉出。
3、門、窗洞口邊構造
門窗洞口收邊采用3mm厚鋁單板,采用自攻螺釘或塑料膨脹螺栓固定,面板顏色根據設計確定,各接縫之間的縫隙打耐候膠密封。
窗洞口鋁單板施工時,應按照先上后下,再左后右的施工順序進行施工;窗臺、門洞上沿口鋁單板應做出5%外斜滴水坡度(即內高外低),且應在鋁單板下方鉆滴水孔;下沿口應做出5%外斜流水坡度(即內高外低),門窗洞口四周鋁單板與門窗框邊緣接口處應采用絕熱嵌縫條和耐候密封膠密封。
4、女兒墻頂構造
女兒墻頂部最后一排陶土板若不是整板,可跟廠家專門定制,也可以現場切割整板然后進行安裝,切割時要先在面板上劃線,沿劃線切割保證切口的平直。
女兒墻頂部收口采用3mm厚鋁單板,采用自攻螺釘或塑料膨脹螺栓固定,鋁單板面應做出5%內斜流水坡度(即內低外高),各接縫之間的縫隙打耐候膠密封。
5、外墻勒腳構造
陶土板幕墻外墻勒腳部位應留設變形縫避免與地面直接接觸,并確保雨水不會滲入幕墻內腔。最底排陶土板距離室外地面距離15mm,縫隙用泡沫棒填充后在表面打不小于3.5mm厚的耐候密封膠。
6、伸縮縫構造
墻體伸縮縫處應先安裝好成品伸縮縫板并做好保溫和防水處理,伸縮縫兩側各安裝一根立柱及橫梁,陶土板接縫設在兩立柱之間,防止建筑不均勻沉降變形,導致陶土板破裂。
5.2.11清理驗收
陶土板安裝完成后,對完成面進行系統檢查,檢查是否有被污染弄臟的板塊,污染部位先用棉布蘸少許清潔劑擦拭干凈,再用清水布擦拭一遍;安裝過程中和安裝完成后要注意做好成品的保護工作,嚴禁蹬踏、重物撞擊。
江西韶華陶瓷有限換公司立足環保、生態、人文的理念。公司專注于陶土建筑產品的發展,研發,以及創造,主營產品陶板幕墻、陶磚、陶棍、陶百葉等新型外墻裝飾建材。